
Sustainabilityinacost-efficientway
Diósd, Hungary
Typology
ResidentialSize
300 m2 GFAValue
234 000 000 HUFStatus
Under constructionOur Involvement
Developer (Stage 0-7) Design & BuildEquinox Team
Bence Móré, Tibor Homlok, Mirtill Hegedűs, János Tóth, Attila Rácz, Bálint Bakos, Máté MolnárSet on a narrow plot, the site had been a challenge for development for a long time. Equinox took it as an opportunity to create value on this seemingly abandoned piece of ground.
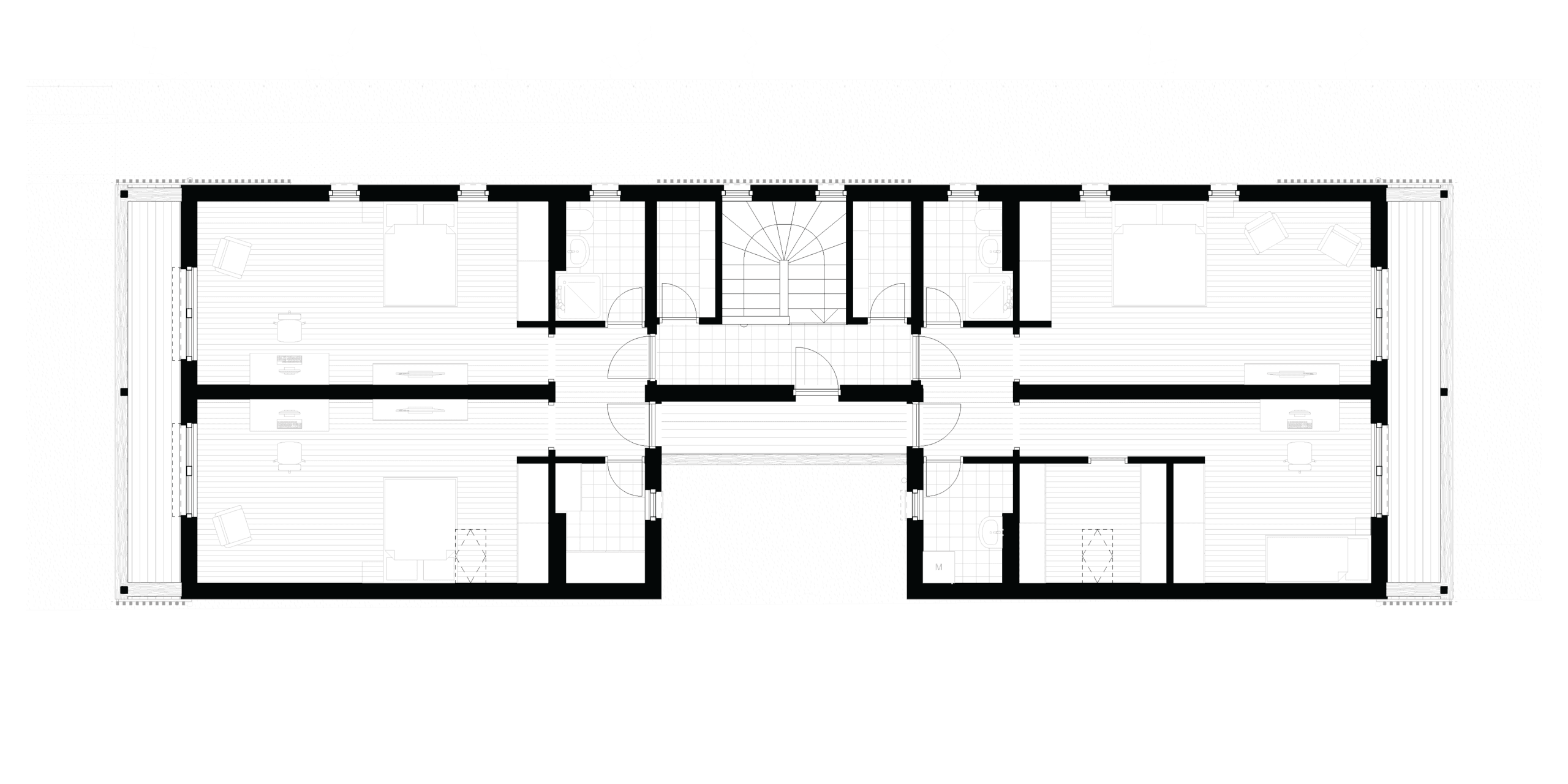
The challenge
To comply with regulations, the building itself had to be long and narrow, leaving a 2 m wide side garden, and was placed at the back of the plot to maintain a distance from the neighbour's house. The roof slant angle was set at 30 degrees to allow for the placement of skylights facing the neighbour. The building height limit was just enough to place one full height storey under the collar beam above the ground floor.
The layout
With the side garden so narrow, and a bus station just next to the fence, the house got its largest opening on the narrow facades, connecting the communal places, the office, and the rooms to two bigger patches of gardens. The entrance was placed in the middle of the long facade, where a small circulation area and technical zone open up to the livingroom, kitchen, and dining area complex, to the office on the other side, and to the rooms on the first floor. An atrium was opened in front of the entrance to allow for natural light to enter the smaller technical spaces.

The structure
The primary load-bearing material was construction-grade timber, which was integrated into ribbed frames to create structural panels for load-bearing walls. Slabs and the roof were constructed in-situ using single ribs and beams. Cellulose was used as the main insulation material between the ribs. Steel earth-screws were used for the foundation. Facades were given extra insulation, and a warm white stucco screening complemented with pine lamellas for shading and added character.















