
Átmenetizónákatúlmelegédésellen
Budapest, Magyarország
Tipológia
LakóépületMéret
1375 m² GFAÉrték
600.000.000 FtÁllapot
Kivitelezés alattA mi részvételünk
Építészeti Tervezés (0-4. szakasz) & FenntarthatóságEquinox Csapat
Fürtön Balázs, Szekér Ádám, Bakos Bálint, Bakos Noémi, Nasri BayanMegrendelő
CLC ConstructSzerkezeti Tervező
László ZoltánGépészmérnök
Pártl BenceVillamosmérnök
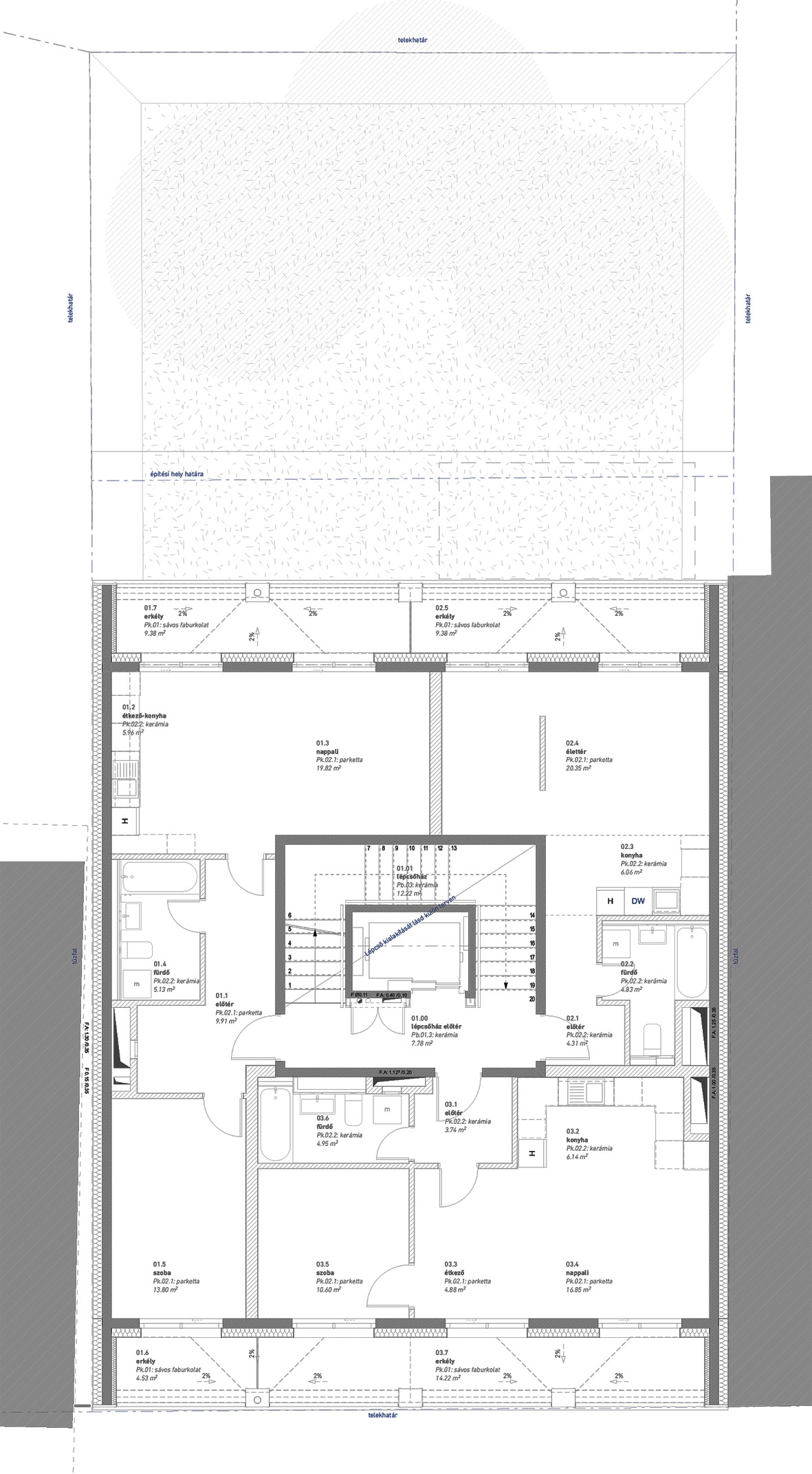
Dudás PéterAz Equinox egy 16 lakásból álló többlakásos épületet tervezett, a Puskás Ferenc Stadion közelében, amely Budapest stratégiailag változatos negyedében található. Ebben a városi kontextusban az épület homlokzata strukturált rácsmintát vesz fel, kiterjesztett acéllemez panelekkel és vasbeton födémekkel. A melegség és a karakter meghonosítása érdekében fa ablakok és teraszburkolatok kerültek beépítésre.
Elsődleges célunk az volt, hogy az épület mindkét oldalán átmeneti zónákat alakítsunk ki a nyári hónapokban az ÉK és az ÉNy irányú szellőztetés elősegítésére, ezzel megelőzve a lakásokon belüli túlmelegedést. Ezenkívül minden apartman tágas loggiával rendelkezik, amelyek bőséges szabadtéri életteret kínálnak. Ez a kialakítás lehetővé teszi, hogy a lakók egész évben élvezhessék a kültéri kapcsolatot, amely alkalmazkodik a magyar klímához.













