
Iparicsarnokrevitalizációésbővítés
Törökbálint, Magyarország
Tipológia
Iroda / MűhelyMéret
1205 m² GFAÉrték
350.000.000 FtÁllapot
TervezésA mi részvételünk
Fejlesztő (0-7. szakasz): Tervezés és Építés / FenntarthatóságEquinox Csapata
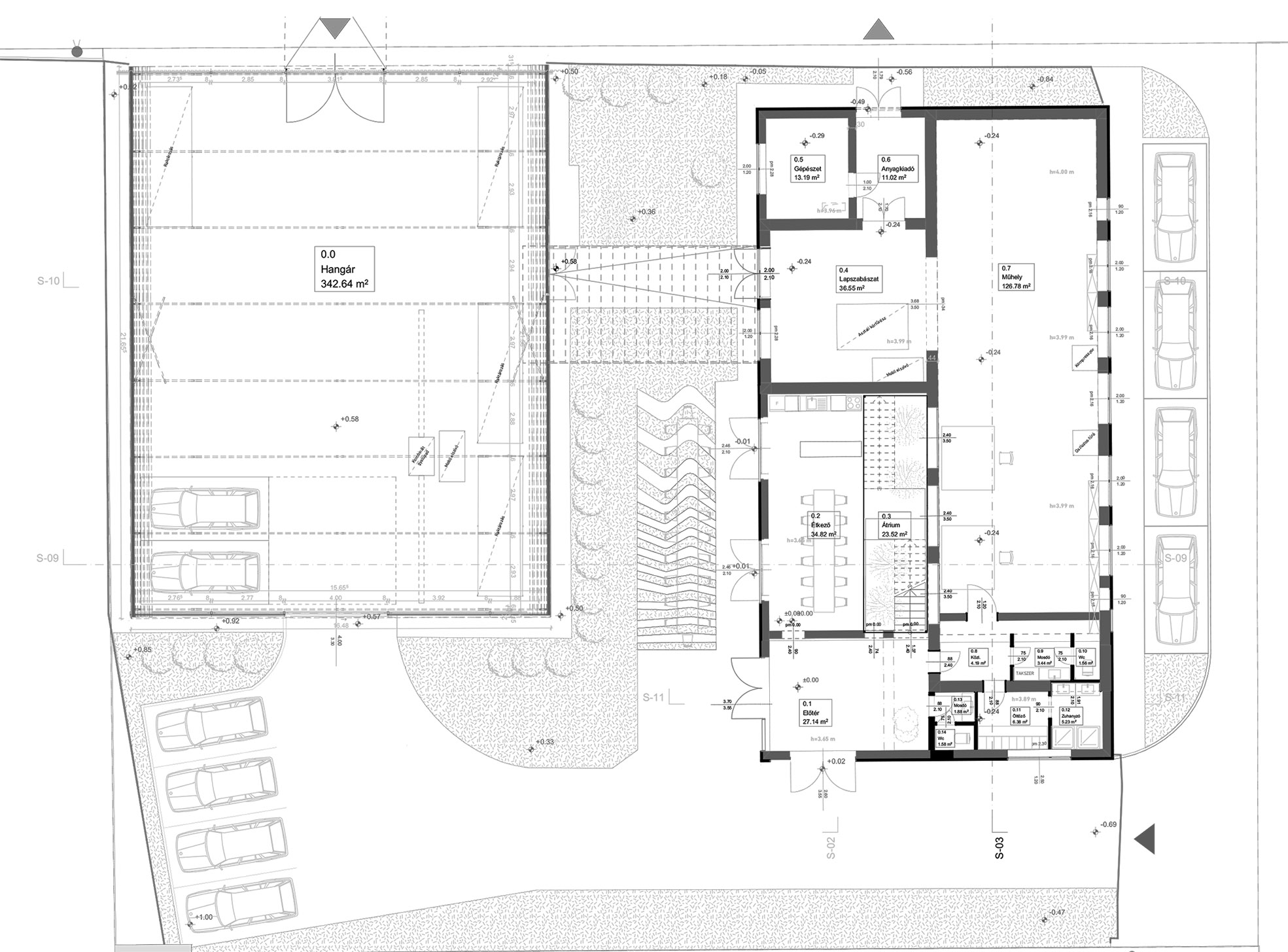
Szekér Ádám, Berczi Zsófia, Bakos Bálint, Bancsó András, Homlok Tibor, Kosik PálA területen az Equinox design and build tevékenységének megfelelően két jól elkülöníthető tevékenység fog folyni: műhelymunka és irodai munka. A cég alapvető értékeit meghatározza, hogy ez a két tevékenység – a szerencsétlen építőipari gyakorlattal ellentétben – egymással szorosan együtt dolgozik, és egymás munkájára hat. Ezt az együttdolgozást szeretnénk tovább erősíteni azzal, hogy egy fedél alá kerülünk, és ahol lehet, építészeti eszközökkel is igyekszünk ezt a közösséget, valamint a két munkafolyamat közötti transzparenciát erősíteni. Törekedtünk olyan terek megalkotására, ahol ezek a tevékenységek, emberek találkoznak, valamint olyan épülethasználatra ösztönözni az itt dolgozókat, amely elősegíti ennek további erősödését.
ÁTRIUM és TRANSZPARENCIA
A közös bejáratból már rálátás nyílik az átriumra, ami a ház lelke: egy nagy, üvegfelületekkel határolt lépcsőház, ahol növények telepítését is tervezzük. Üvegfelületei átlátásokat biztosítanak a különböző területek (műhely, iroda, közösségi és reprezentatív terek) között, és lépcsőház révén fizikailag is összeköti azokat. Miközben ezen a téren haladunk át, a tevékenységünk egész skálája fel-felvillan: látni az összeszerelést, az irodát, a tárgyalót, valamint az olyan tereket is, mint a közös étkező és a tetőterasz.
SZERVEZÉS
A műhely szintjén helyezkedik el a közös étkező és pihenő, ami az egész épületegyüttes közös étkezőjeként szolgál – az iroda szintjén tudatosan nem létesítettünk ilyen teret. Ez méretéből adódóan alkalmas arra, hogy a teljes épületegyüttes egyidejű étkezőjeként működjön, ami remélhetőleg tovább erősíti majd a két tevékenységet végzők közötti kapcsolatokat. A közös étkezőből két nagyméretű, megmaradó ipari kapu nyílik a két épület közötti védettebb belső udvarra, így amikor az idő engedi, kint is lehet ebédelni. Az étkező másik hosszfala végig üvegezett az átrium felé, így akkor is természetközeli a jellege, amikor a kapuk csukva vannak. A téglaépület emelet-ráépítése kapta az új, irodai funkciót. Ez az alsó (műhely) szinttel analóg módon működik: a telek belső oldala felé vannak a kisebb cellás terek, a külső oldalon pedig nagy, egybenyitott open office tér van, lent pedig műhely. Az épület központi terei is analóg működésűek a földszint és emelet között. A központi terek: az étkező és a tárgyaló, valamint a „termelés” terei – a műhely és az open office tér – alaprajzilag egy helyre kerültek. A homlokzatot alapjaiban meghatározza a passzív árnyékolási rendszer, amelyet előtetők és pengeszerű árnyékoló lamellák alkotnak. Ez az eszköztár a passzív árnyékoláson túl a műhely és az irodablokk elkülönítését, de mégis rokonságát hozza létre.
PROJEKT CÉLJA
A projekttel az Equinox egyedi tevékenységének otthonát szerettük volna megteremteni, ahol a kivitelezői és tervezői munka valóban egy fedél alatt élhet, ezzel kommunikálva magunknak és másoknak is azt, ami az építőiparban sajnos ritka: a valódi együttműködést, ami a munkánkra jellemző.





